Search Properties

Brassey Road, Bexhill-On-Sea

Bexhill-On-Sea

£1,300,000

Department:
Commercial
Type:
Land

Property features

  • Development Opportunity
  • Sea Views
  • Spacious Garden
  • Passenger Lift and Stair Lift
  • Off Road Parking
  • Telephone & TV Points in All Rooms
  • Planning Permission For 8 Flats

Summary

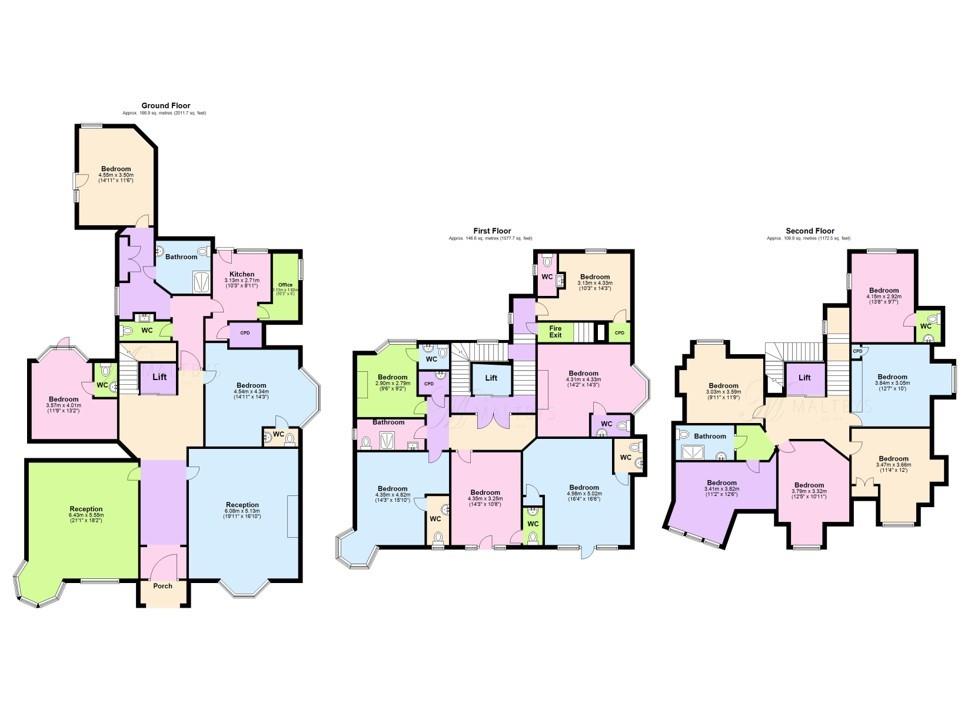
The opportunity has arisen to acquire a Freehold plot which was previously occupied as part of a Residential Care Home along Bexhill's coastline. The three storey building was built approximately in the 1900's and boasts high ceilings and an impressive frontage. The property contains fifteen bedrooms spaced across three levels, with most benefiting from en-suite facilities. All rooms are set up with telephone lines, TV points, and care lines. On the ground floor there are also currently three large communal reception rooms. There is off road parking to the front of the building with space for several cars as well as access to the side for deliveries and parking. At the rear there are beautifully landscaped gardens and several outbuildings which are used for storage and maintenance. Early viewing is highly recommended to avoid disappointment. Current EPC rating: C

Floor Plans

Request Further Details

Or arrange a viewing