Search Properties

St Leonards Road, Bexhill On Sea

Bexhill On Sea

£200,000

Department:
Commercial

Property features

  • Investment Opportunity
  • Leasehold Property
  • Tenant in Situ
  • Based Over 3 Floors
  • Town Centre Location
  • Available Now

Summary

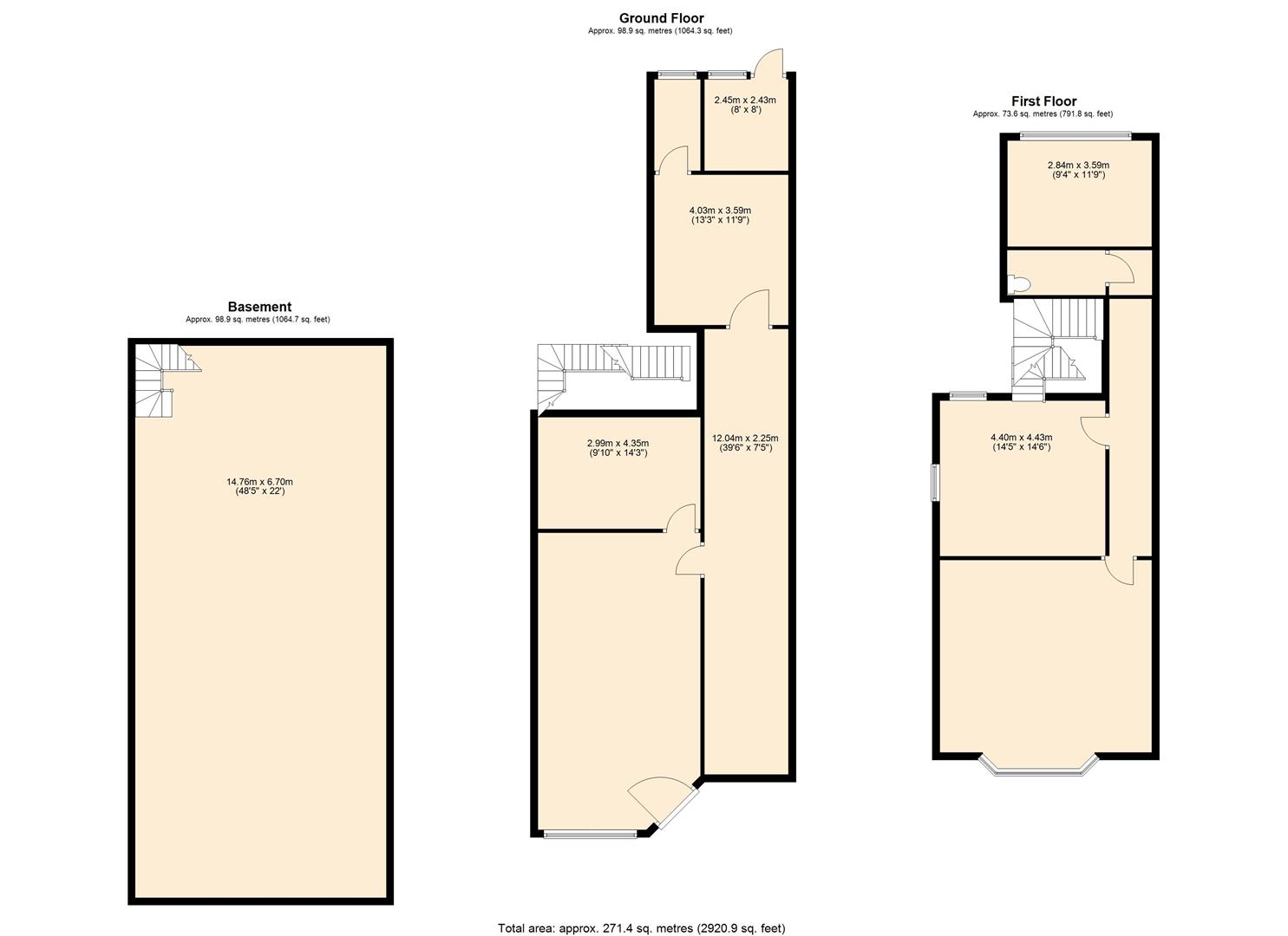
Maltbys are delighted to present this well positioned leasehold commercial shop for sale. This property is arranged over 3 floors, offering versatile space suitable for a range of uses. This property is being sold with long term tenants in situ, making this a great investment opportunity.

Floor Plans

Request Further Details

Or arrange a viewing